Lot 81 Robin Road, Kawungan

Price:

$339,000

629m2 m2
166m2 m2
4
2
2
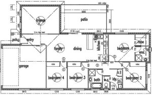
The Jasmine is a popular design and provides low maintenance living. Offering 4 bedrooms and an open plan living area that connects to the north-east facing covered patio. Plus there’s a separate lounge room at the front of the home. The main bedroom includes an ensuite and walk in robe, while the other bedrooms all have built in robes. The 629m2 block with side access via double gates allows easy access to store your van or provide plenty of space for gardening or kids to play. Buying a new home in Hervey Bay has never been easier with great turn key inclusions: 600mm stainelss steel oven, cooktop and rangehood Ceiling fans to living areas and bedrooms Covered patio Floor covering Light fittings Letterbox Driveway Clothesline Fence Turf allowance Ask about the $20,000 in new building grants apply to this property. Now under construction and due to complete around October 2020, buy now to avoid missing out. Homes are available for inspection by appointment. Phone Rod on 0408 619 491 or email Rod@herveybayhouseandland.com.au to book an appointment today. * Images are indicative of the Jasmine design, but not of this specific property. Colours, finishes and materials may vary.

For further information about this property, please contact us:





    MORE PROPERTIES FOR SALE AT LAUDERDALE

    All
    House & Land
    Land
    Ready-Built Home
    [map-multi-marker id="1"]

    © Copyright 2018 Hervey Bay House & Land